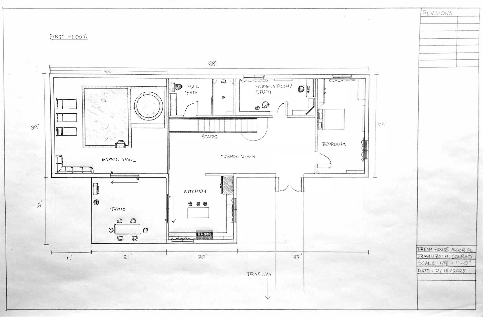
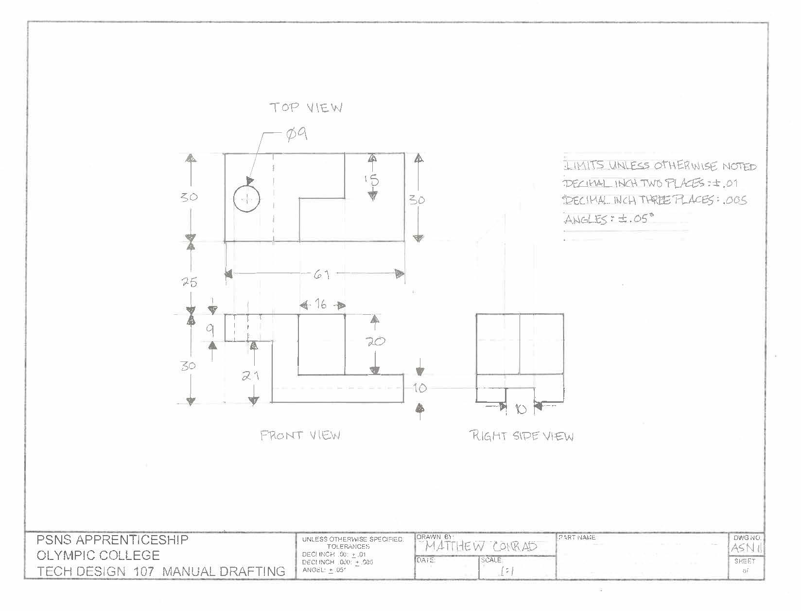
The following images are of various hand-drawn mechanical and architectural drawings that I created throughout the technical design program at Olympic College in Bremerton, WA. These drawings were created entirely by hand using fundamental drafting tools such as a drawing board, rulers, and compass.
MANUAL ARCHITECTURAL DRAFTING
MANUAL ARCHITECTURAL DRAFTING